Комплектующие для производства подъемных кранов и талей

Серия А-50

Вы также можете заполнить наш опросный лист, на основе которого мы сами подберем для Вас все необходимые комплектующие

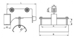
1023.50.10 Кабельная тележка
1023.50.10 Кабельная тележка
  • Тип - CT-A/50-160x160x100
  • Размеры:  A - 135 мм
                     B - 160 мм
                     C - 25 мм
                     D - 100 мм
                     L - 160 мм
  • Вес (кг/шт) - 
  • нагрузка до 20 кг

-2
Материал
  • корпус металл
  • седло металл
+ Показать детальное описание
1024.50.12 Кабельная тележка
1024.50.12 Кабельная тележка
  • Тип - CT-A/50-160x160x120
  • Размеры:  A - 135 мм
                     B - 160 мм
                     C - 20 мм
                     D - 120 мм
                     L - 160 мм
  • Вес (кг/шт) - 
  • нагрузка до 20 кг

-2
Материал
  • корпус металл
  • седло металл
+ Показать детальное описание
1025.50.12 Кабельная тележка
1025.50.12 Кабельная тележка
  • Тип - CT-A/50-200x160x120
  • Размеры:  A - 135 мм
                     B - 160 мм
                     C - 30 мм
                     D - 120 мм
                     L - 200 мм
  • Вес (кг/шт) - 
  • нагрузка до 20 кг

-2
Материал
  • корпус металл
  • седло металл
+ Показать детальное описание
1026.50.16 Кабельная тележка
1026.50.16 Кабельная тележка
  • Тип - CT-A/50-200x160x160
  • Размеры:  A - 135 мм
                     B - 160 мм
                     C - 20 мм
                     D - 160 мм
                     L - 200 мм
  • Вес (кг/шт) - 
  • нагрузка до 20 кг

-2
Материал
  • корпус металл
  • седло металл
+ Показать детальное описание
1027.50.00 Кабельная тележка
1027.50.00 Кабельная тележка

Тип - специальный

-2
+ Показать детальное описание
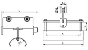
1023.51.10 Тележка поводковая
1023.51.10 Тележка поводковая
  • Тип - CTT-A/50-160x160x100
  • Размеры:  A - 135 мм
                     B - 160 мм
                     C - 25 мм
                     D - 100 мм
                     L - 160 мм
  • Вес (кг/шт) - 1,700
  • нагрузка до 20 кг

-2
Материал
  • корпус - сталь оцинкованная
  • ухо -сталь оцинкованная
  • седло - сталь оцинкованная
  • бампер - резина EPDM 
+ Показать детальное описание
1024.51.12 Тележка поводковая
1024.51.12 Тележка поводковая
  • Тип - CTT-A/50-160x160x120
  • Размеры:  A - 135 мм
                     B - 160 мм
                     C - 20 мм
                     D - 120 мм
                     L - 160 мм
  • Вес (кг/шт) - 1.980
  • нагрузка до 20 кг

-2
Материал
  • корпус - сталь оцинкованная
  • ухо -сталь оцинкованная
  • седло - сталь оцинкованная
  • бампер - резина EPDM 
+ Показать детальное описание
1025.51.12 Тележка поводковая
1025.51.12 Тележка поводковая
  • Тип - CTT-A/50-200x160x120
  • Размеры:  A - 135 мм
                     B - 160 мм
                     C - 30 мм
                     D - 120 мм
                     L - 200 мм
  • Вес (кг/шт) - 2,980
  • нагрузка до 20 кг

-2
Материал
  • корпус - сталь оцинкованная
  • ухо -сталь оцинкованная
  • седло - сталь оцинкованная
  • бампер - резина EPDM 
+ Показать детальное описание
1026.51.16 Тележка поводковая
1026.51.16 Тележка поводковая
  • Тип - CTT-A/50-200x160x160
  • Размеры:  A - 135 мм
                     B - 160 мм
                     C - 20 мм
                     D - 160 мм
                     L - 200 мм
  • Вес (кг/шт) - 3.230
  • нагрузка до 20 кг

-2
Материал
  • корпус - сталь оцинкованная
  • ухо -сталь оцинкованная
  • седло - сталь оцинкованная
  • бампер - резина EPDM 
+ Показать детальное описание
1027.51.00 Тележка поводковая
1027.51.00 Тележка поводковая

Тип - специальный

-2
+ Показать детальное описание
1023.52.10 Зажим концевой
1023.52.10 Зажим концевой
  • Тип - CTE-A/50-85x160x100
  • Размеры:  A - 135 мм
                     B - 160 мм
                     C - 25 мм
                     D - 100 мм
                     L - 85 мм
  • Вес (кг/шт) - 1,285
  • нагрузка до 20 кг

-2
Материал
  • корпус - сталь оцинкованная
  • седло -  сталь оцинкованная
+ Показать детальное описание
1024.52.12 Зажим концевой
1024.52.12 Зажим концевой
  • Тип - CTE-A/50-85x160x120
  • Размеры:  A - 135 мм
                     B - 160 мм
                     C - 20 мм
                     D - 120 мм
                     L - 85 мм
  • Вес (кг/шт) -  1,500
  • нагрузка до 20 кг

-2
Материал
  • корпус - сталь оцинкованная
  • седло -  сталь оцинкованная
+ Показать детальное описание
1025.52.16 Зажим концевой
1025.52.16 Зажим концевой
  • Тип - CTE-A/50-85x160x160
  • Размеры:  A - 135 мм
                     B - 160 мм
                     C - 30 мм
                     D - 160 мм
                     L - 85 мм
  • Вес (кг/шт) - 1,755
  • нагрузка до 20 кг

-2
Материал
  • корпус - сталь оцинкованная
  • седло -  сталь оцинкованная
+ Показать детальное описание
1026.52.00 Зажим концевой
1026.52.00 Зажим концевой

Тип - специальный

-2
+ Показать детальное описание